Joanna Pielat - Rusinkiewicz scenografia architektura wnętrz
Home
O mnie
Galeria
Projekty
Realizacje
Kontakt
Previous image
Next image
Back to overview
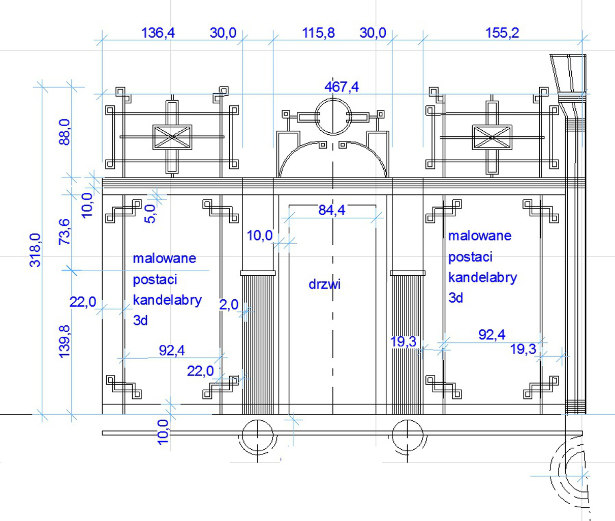
"Dajcie mi tenora" rysunek wykonawczy